|
|
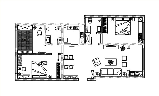
设计师 | 相宇 | 装修风格 | 简欧混搭 |
三室两厅 |
| 小区 |
奥北公元 |
装修面积 | 135㎡ | ||
| 案例简介 |
本案是新婚夫妻二人居住 为打造出更多开放式格局,将餐厅过道动线改变,让家的连接处更有趣味。材质上运用大量留白和木质建材平衡,软饰搭配则增加稍许金色元素,使室内充满轻盈空气感。 |
||||
咨询热线:400-002-6791
|
|
设计师 | 相宇 | 装修风格 | 简欧混搭 |
三室两厅 |
| 小区 |
奥北公元 |
装修面积 | 135㎡ | ||
| 案例简介 |
本案是新婚夫妻二人居住 为打造出更多开放式格局,将餐厅过道动线改变,让家的连接处更有趣味。材质上运用大量留白和木质建材平衡,软饰搭配则增加稍许金色元素,使室内充满轻盈空气感。 |
||||
上一篇:翰林观天下/110平/北欧简约
下一篇:润佳花园95平新中式