|
|
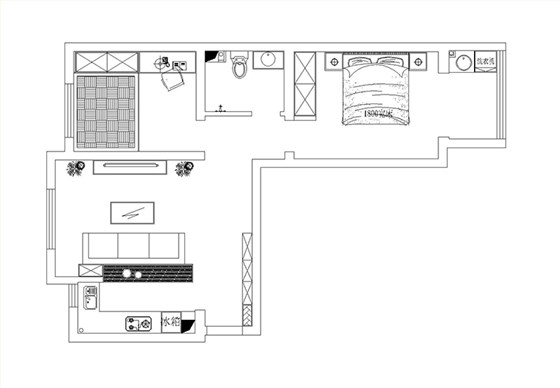
设计师 | 李可 | 装修风格 | 现代极简 |
两室一厅 |
| 小区 |
上城浩林园 |
装修面积 | 89㎡ | ||
| 案例简介 |
现代极简风格,业主是大学老师,一位讲究生活品质的单身精致男士,喜欢极简黑白灰风格,为了打开格局和解决空间狭小问题,进行了拆改设计,做了开放式厨房的规划,吧台的利用,更提升了业主的生活品质,拉伸了空间感。 |
||||
咨询热线:400-002-6791
|
|
设计师 | 李可 | 装修风格 | 现代极简 |
两室一厅 |
| 小区 |
上城浩林园 |
装修面积 | 89㎡ | ||
| 案例简介 |
现代极简风格,业主是大学老师,一位讲究生活品质的单身精致男士,喜欢极简黑白灰风格,为了打开格局和解决空间狭小问题,进行了拆改设计,做了开放式厨房的规划,吧台的利用,更提升了业主的生活品质,拉伸了空间感。 |
||||
上一篇:东岸名苑100平简美
下一篇:石门小区150平北欧风格