咨询热线:400-002-6791

乐豪斯

首页 定制案例

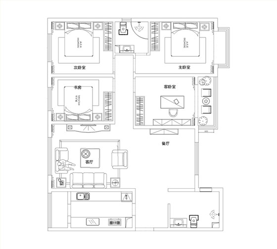
盛益华苑168平日韩风格

郎建明

设计师 郎建明 装修风格 日韩

四室两厅

小区

盛益华苑

装修面积 168
案例简介


平面

盛益华苑168平日韩风格

盛益华苑168平日韩风格

盛益华苑168平日韩风格

盛益华苑168平日韩风格

盛益华苑168平日韩风格

盛益华苑168平日韩风格

盛益华苑168平日韩风格

上一篇:嘉苑小区/180平/后奢风

下一篇:天山熙湖/320平/简欧风格

本案例装修报价