|
|
设计师 | 上善美居 | 装修风格 | 新中式 |
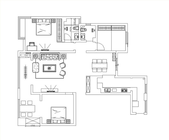
三室两厅 |
| 小区 |
天河悦城 |
装修面积 | 168㎡ | ||
| 案例简介 |
本案主迎合业主对中国传统文化的喜爱,将中式元素体现在空间中的每个细节当中,同时将阳台改为茶室,使空间装饰效果体现的淋漓尽致的同时也兼备了其实用性。 |
||||
咨询热线:400-002-6791
|
|
设计师 | 上善美居 | 装修风格 | 新中式 |
三室两厅 |
| 小区 |
天河悦城 |
装修面积 | 168㎡ | ||
| 案例简介 |
本案主迎合业主对中国传统文化的喜爱,将中式元素体现在空间中的每个细节当中,同时将阳台改为茶室,使空间装饰效果体现的淋漓尽致的同时也兼备了其实用性。 |
||||
上一篇:天河悦城/138平/现代风格
下一篇:新乐民政花园别墅200平新中式